Gestion & Transactions locatives

T2 de 44 m² à Cenon avec place de parking privative

< Retour

Appartement 44.32 m² - 2 Pièces - Cenon (33150)

  • Prix
  • 139 000
  • Ref T361
Exclusivité Prix en baisse
gallery loader
Partager cette offre
+1
Description de l'offre

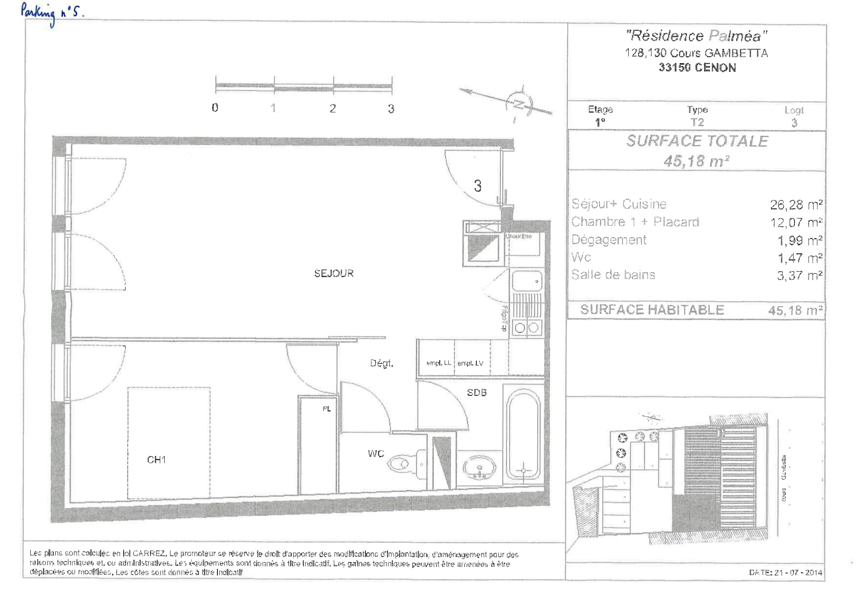
Adresse : 128-130 cours Gambetta, 33150 CENON. La société GTL vous propose à la vente cet appartement T2 situé dans une résidence récente (2015). Il comprend une entrée, un séjour avec cuisine ouverte semi-équipée, une chambre avec placard, une salle de bains et WC séparés (plan à la fin des photos). Vous disposerez également d'une place de stationnement privative. Chauffage indivuel au gaz. Les charges de copropriété s'élèvent à environ 89 euros par mois et comprennent la provision sur consommation d'eau froide. Il n'y a aucune procédure en cours. Taxe foncière 2025 : 1315 €. Votre contact : Flavie Vella 06 21 28 38 41.

Descriptif du bien

Code postal 33150


Surface habitable (m²) 44,32 m²


Surface loi Carrez (m²) 44,32 m²


Nombre de chambre(s) 1


Nombre de pièces 2


Etage 1


Nombre de niveaux 1


Ascenseur NON


Nb de salle de bains 1


Type de cuisine SEMI-EQUIPEE


Mode de chauffage Gaz


Type de chauffage Radiateur


Format de chauffage Individuel


Interphone OUI


Visiophone OUI


Balcon NON


Terrasse NON


Murs mitoyens 1


Cave NON


Nombre de parking 1


Exposition NORD


Année de construction 2015


Copropriété OUI


Lot n° 3


nombre de lots 29


Quote Part annuelle des charges 1 077,20 €


statut du syndic pas de procédure en cours


Prix de vente 139 000 €


Les honoraires d'agence seront intégralement à la charge du vendeur  


Dépôt de garantie TTC 6 950 €


Charges 89 €


Taxe foncière annuelle 1 315 €


Diagnostics de performance énergétique
DPE
DPE

La ville de Cenon (33150)

Suivez-nous

Adhérents

Mentions légales